Hetki Seven Energiasäästlik 93 m² kasuliku pinnaga väikemaja

Hetki Seven Energiasäästlik 93 m² kasuliku pinnaga väikemaja
115,370.00
EUR
Müüja / Teenusepakkuja
Abcdeal

Laki 16
10621 Tallinn Harjumaa
Eesti

Request form

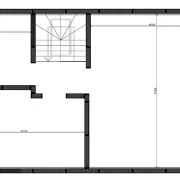
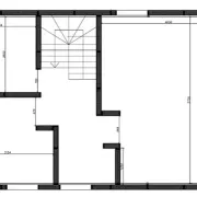
Hetki Seven ruumiplaneering

Hetki väikemajad on loodud elu nautimiseks. Igas majas on kesksel kohal mõnus elutuba, kus pere ja kallimatega puhkust nautida. Magamistoad pakuvad vajalikku privaatsust ja loovad hea une tarbeks ideaalse atmosfääri.

 

Miks Hetki maja?

Hetki on loodud, et pakkuda sulle kindlust, mugavust ja luksust. Meie SIP-paneelidest või terasraamil majad sobivad ideaalselt Eesti kliimasse, pakkudes talvel mõnusat toasooja ja suvel ergutavat jahedust. Hetki majade sisekliima on hea ja tervislik.

Meie materjalid on alati parimad, sest me teame, et sina väärid parimat.

  • Hoolega disainitud ja loodud
  • Detailideni perfektne
  • Nautimiseks loodud ruumiplaneering
  • Tehniliselt täiuslik
  • Suurepärane sisekliima

 

  1. Laudis / terasprofiil
  2. Roovitis ja ventileeritav õhk
  3. Tuuletõkkemembraan
  4. Valikuline lisasoojustus
  5. Välimine OSB/3 või Fermacell
  6. EPS-soojustus või PUR-soojustus
  7. Aurutõkkemembraan
  8. Siseseina roovitis
  9. Laudis / seinapaneelid / kipsplaat

 

Tehnilised andmed

Põhikonstruktsioonid

  • SIP-paneelid 17 cm
  • Soojustus EPS 80 15 cm
  • Seinad U=0,23
  • Katused U=0,15
  • Maksimaalne kaal 200 kg

Avatäited

  • PVC-aknad - seest valge, väljast antratsiit
  • Kolmekordne pakett - 0,79 W/m²
  • Katuseaknad Velux - 0,9 W/m²
  • Turvauksed 90 cm; 55 mm lehega
  • Aknad ja uksed on massiivsed ja vaiksed

Vundamendid

  • Soovituslik on plaatvundament
  • Postvundamendi puhul lisandub SIP-põrandaplaat

Hoone parameetrid

  • Ehitusalune pind 6.3 x 10.8 m (67 m²)
  • Kasulik pindala 93 m²
  • Kõrgus 7.13 m
  • Katusekalle 45°
  • Vannitubasid 2
  • Magamiskohtasid 4

Katus

  • Preemium teraskatus
  • Kiired Iron Click ühendused
  • Kvaliteetne RAL 7016 pinnakate
  • Väga kiire paigaldus
  • Nähtamatu paigaldusmeetod
  • Sama tehnoloogia ka seintel

Vaata pakette

Valmismajade galerii

 

Milline pakett just sulle sobib?
 

Baaspakett

€93494KM-ta

  • SIP-paneelid
  • Katusekonstruktsioon
  • Katusekattematerjal
  • Tuuletõke
  • Uksed, aknad
  • Välisviimistlus-materjalid
  • Siseseinad
  • Transport krundile
Vali see pakett


Väljast valmis

Meie teeme su maja valmis

€115370KM-ta

  • Pinnase ettevalmistus
  • Kruvivundament
  • Soojustatud põrandaplaat
  • Paketi püstitus
  • Välisviimistlus
  • Transport krundile
Vali see pakett


Lisad

Täienda enda valitud paketti

  • Elekter €3089 + KM
  • Trepp €4755 + KM
  • Varikatus/ terrass €0 + KM

Milliseid muudatusi saab teha?

Üldkontseptsioon

Maja otstarvet on võimalik valida: elumaja, saunamaja, välikontor, joogamaja jne.

Välisviimistlus

On võimalik valida metallist või puidust viimistlust ning valida värvitooni. Standardpaketis on majal klassikprofiiliga välisviimistlus nii katusel kui seintel.

Sisetööd

Siseseinad on võimalik asetada vastavalt sinu soovidele. Samuti saab muuta ruumide otstarvet (nt lisada saun)

Сообщение подавцу / поставщику услуги